0 visitas
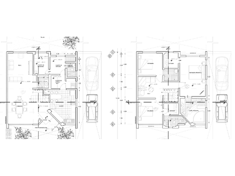
As plantas arquitetônicas são representações gráficas detalhadas de um projeto de construção, ilustrando a disposição dos espaços, medidas, paredes, portas, janelas e outros elementos estruturais. Elas servem como guia para engenheiros, construtores e designers na execução da obra. Além do layout interno, podem incluir plantas elétricas, hidráulicas e cortes estruturais. O design pode ser personalizado para atender às necessidades funcionais e estéticas do cliente, garantindo eficiência e conforto no espaço planejado.